Skip til hoved indholdet MinSide MinSide

3.987 kr. pr.md

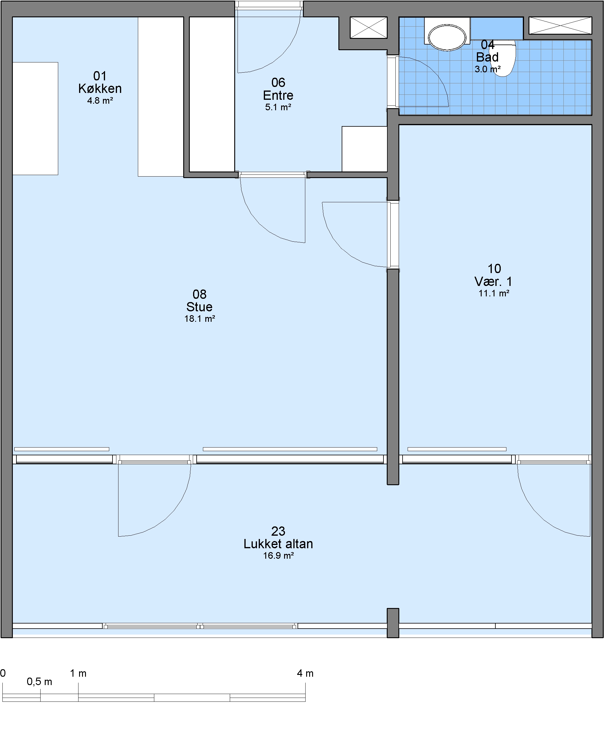
Studiebolig | 2 vær. | 51 m²

Denne afdeling blev opført i 1971 og omfatter 150 lejligheder.
I følgende opgange er der etableret elevator (36, 56 og 58), så personer der er gangbesværede, bruger rollator eller kørestor har mulighed for at bo i en totalrenoveret lejlighed (2017 - 2020) med udsigt over boligområdet. Lejlighederne har under renoveringen fået nye facader, gulve, døre, køkken og badeværelser med gulvvarme.
Stengårdsvej er et boligområde med mange tilbud til dets beboere - her er mulighed for at være spejder, deltage i akvarieklubben, besøge cafeen og mosaikken. Der er dejlige grillpladser, der er til fri afbenyttelse af områdets beboere og flere dejlige legepladser til de mindre beboere.
Derudover er Stengårdsvej et område med mange grønne arealer, som er helt fri af kørende trafik. Du finder desuden et udendørs fitnesscenter: "Gym-Park", hvor du kan prøve kræfter med de forskellige redskaber. Gym-Parken er til fri afbenyttelse for alle, der har lyst til at udfordre og styrke kroppen.

Studieboligerne er populære, så søg i god tid inden studiestart.

Faciliteter

Altan/Have
Ja

Der er have til alle lejligheder beliggende i stuen. Udvalgte lejligheder har adgang til altan.

Egnet for gangbesværede
Se mere

Boligerne på Stengårdsvej 24-58 er ikke velegnet for personer med nedsat gangfunktion.

El
Se mere

Du betaler direkte til forsyningsselskabet.

Elevator
Se mere

Opgange: Stengårdsvej 36, 56 og 58 har elevator.

Husdyr
Se mere

Intet husdyr

Hårde hvidevarer
Ja

Der er køleskab, komfur og emhætte. Er lejemålet forberedt til opvaskemaskine, vaskemaskine eller tørretumbler kan du ansøge via MinSide om installering.

Lokaleleje
Ja

Festsal: Der er 1 festsal, Stengårdsvej 163, der udlejes til beboere. Gæsteværelse: Der er 2 gæsteværelser, der udlejes til beboerne. Sommerhus: Beboere har mulighed for at leje sommerhuset på Fanø. For lokaleleje - læs hvordan under menupunktet "Beboere".

Parkering
Ja

Der er afgiftsfrie parkeringspladser i bebyggelsen, som er forbeholdt beboerne. Derudover er der 18 garager, der bliver udlejet af boligforeningen. Ønsker du at komme på ventelisten til en garage skal du kontakte boligforeningen. Endvidere kan du også søge garager i øvrige afdelinger på Stengårdsvej - beboere i pågældende afdeling har fortrinsret.

Råderet - ændring i din bolig
Se mere

Individuel råderet. Læs om principperne i Råderetten under menupunktet "Boligsøgning".

TV/Internet
Ja

Der er stik til kabel tv og internet installeret. Du kan kontakte en udbyder for valg af tv-kanaler, internethastighed og priser. Du afregner direkte med din udbyder. Klargjort til fiberbredbånd - udgifter forbundet med installering bliver afholdt af lejer.

Vand
Se mere

Du betaler et aconto beløb over huslejen. Der bliver hvert år udarbejdet et særskilt vandregnskab til alle beboere. Overskud eller underskud bliver afregnet over huslejen.

Varme
Se mere

Du betaler et aconto beløb over huslejen. Der bliver hvert år udarbejdet et særskilt varmeregnskab til alle beboere. Overskud eller underskud bliver afregnet over huslejen.

Fælles vaskeri
Ja

Stengårdsvej 24-58: I hver etageejendom er der adgang til fællesvaskeri med vaskemaskiner og tørretumblere.

Vaskeplads

Nej

Området

indkøbsmuligheder

meter

park & natur

meter

træning

meter

Esbjerg C busterminal

meter

skole/uddanelse

meter

institution

meter

Nygårdsvej 37
DK-6700 Esbjerg

CVR nr. 50196011

Telefon: +45 7613 5050
post@ungdomsbo.dk

Links