Skip til hoved indholdet MinSide MinSide

2.503 kr. pr.md

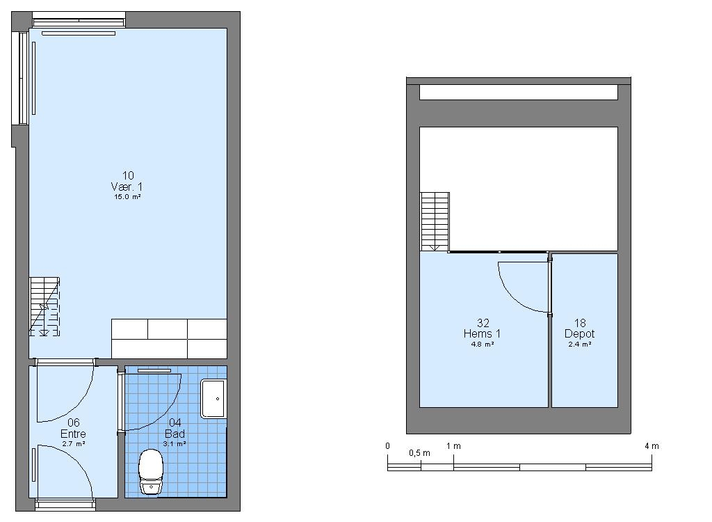
Studiebolig | 1 vær. | 34.8 m²

Stenkrogen:
Kollegiet er opført i 1991 med plads til 94 studerende. Kollegiet har 54 stk. 1 værelses lejligheder, og 20 stk. 2-værelses lejligheder - alle lejligheder har køkken med kogeplader, bad og toilet. Udvalgte 1 og 2 værelseslejligheder er med hems og pultekammer.
Stengårdsvej er et boligområde med mange tilbud til dets beboere - her er mulighed for at være spejder, deltage i akvarieklubben, besøge cafeen og mosaikken. Der er to dejlige grillpladser, der er til fri afbenyttelse af områdets beboere og flere dejlige legepladser til de mindre beboere.
Derudover er Stengårdsvej et område med mange grønne arealer, som er helt fri af kørende trafik. I efteråret 2013 åbnede Stengårdsvej et udendørs fitnesscenter: "Gym-Park", hvor du kan prøve kræfter med de forskellige redskaber. Gym-Parken er til fri afbenyttelse for alle, der har lyst til at udfordre og styrke kroppen.
Studieboligerne er populære, så søg i god tid inden studiestart.
Hedelundvej:
Bebyggelsen består af 24 enkelthuse fra 1988. Hvert hus har 4 værelser på hver 13 kvm, som derudover har en hems på 8 kvm i åben forbindelse. I alle huse er der ligeledes 2 badeværelser og et pænt køkken/opholdsrum på 18 kvm - her er der mulighed for fx at tilberede mad sammen, og der er også plads til at være sig selv. Her er tale om et bofællesskab for 4 personer - et spændende fællesskab, der fungerer godt.
Uden for hvert fælleshus er der adgang til en mindre terrasse, hvor der er mulighed for at mødes på tværs af fælleshusene.
Bebyggelsen er tilsluttet Dansk Kabel TV med fast internetadgang.
Studieboligerne er populære, så søg i god tid inden studiestart.

Faciliteter

Altan/Have
Ja

Stenkrogen: Der er adgang til grønne områder. Hedelundvej: Der er ingen altan eller have, men adgang til terrasse.

Egnet for gangbesværede
Se mere

Stenkrogen: Udvalgte 1 og 2 værelses lejligheder er handicapvenlige. Kontakt Boligforeningen Ungdomsbo for nærmere information.

El
Se mere

Stenkrogen: Der betales direkte til forsyningsselskabet. Hedelundvej: Elforbrug er indeholdt i huslejen.

Elevator
Nej

Nej

Husdyr
Se mere

1 indekat

Hårde hvidevarer
Ja

Stenkrogen: Der er køleskab, kogeplader med miniovn (kervelovn) og emhætte. Hedelundvej: I fælleskøkkenet er der køleskab, komfur og emhætte.

Lokaleleje
Ja

Stenkrogen og Hedelundvej: Festsal: Der er 1 festsal, Hedelundvej 120, der udlejes til beboere. Gæsteværelse: Der er 2 gæsteværelser, der udlejes. Sommerhus: Beboere har mulighed for at leje sommerhuset på Fanø. For lokaleleje, herunder gæsteværelser, festsale og sommerhus - find kontaktoplysninger på www.esebolig.dk/beboere

Parkering
Ja

Der er afgiftsfrie parkeringspladser ved bebyggelsen.

Råderet - ændring i din bolig
Se mere

Stenkrogen og Hedelundvej: Individuel råderet. Læs om principperne i Råderetten under menupunktet "Boligsøgning".

TV/Internet
Ja

Stenkrogen og Hedelundvej: I din bolig forefindes stik med mulighed for bredbånd fra Dansk Kabel TV. For nærmere information: Besøg www.danskkabeltv.dk og find din adresse. Du kan imidlertid kontakte enhver anden udbyder. Klargjort til fiberbredbånd - udgifter forbundet med installering bliver afholdt af lejer.

Vand
Se mere

Stenkrogen: Du betaler et aconto beløb over huslejen. Der bliver hvert år udarbejdet et særskilt vandregnskab til alle beboere. Overskud eller underskud bliver afregnet over huslejen. Vandforbrug er indeholdt i huslejen.

Varme
Se mere

Stenkrogen: Du betaler et aconto beløb over huslejen. Der bliver hvert år udarbejdet et særskilt varmeregnskab til alle beboere. Overskud eller underskud bliver afregnet over huslejen. Varmeforbrug er indeholdt i huslejen.

Fælles vaskeri
Ja

Stenkrogen og Hedelundvej: Der er adgang til fællesvaskeri.

Rygning ikke tilladt
Ja

Lejemål og alle dertilhørende fællesarealer er røgfrie.

Vaskeplads

Nej

Området

indkøbsmuligheder

meter

park & natur

meter

træning

meter

Esbjerg C busterminal

meter

skole/uddanelse

meter

institution

meter

Nygårdsvej 37
DK-6700 Esbjerg

CVR nr. 50196011

Telefon: +45 7613 5050
post@esebolig.dk

Links